金谷廣場loft樓棟信息
2019-05-27 19:05:30
由鵬宇置業有限公司開發的金谷廣場,項目地處富順縣城西區,北臨鐘秀街,南靠釜江大道,西面為二環路,東側為金谷花園住宅。項目占地33畝,新現代化的簡約風格勾勒出硬朗簡歐外觀,規則對稱的中庭景觀,將法式風情演繹至極,為富順增添新的城市亮點。安全的塑膠場地與互動娛樂設施共同構建豐富有趣的下沉空間,人車分流,商住分離的人性化設計,讓生活更加舒心。
金谷廣場LOFT樓棟示意圖
金谷廣場loft滿足你所有想象,超高挑高極具可塑性,創意戶型空間,挑高設計,一層面積兩層享受,空間的利用率和開闊感,絕非單層可以媲美;地處核心,吸附全方位配套資源;多重彈性創變空間,居住投資有保障,未來增值潛力無限,充分滿足商住等多重不同需求和用途。
金谷廣場LOFT效果圖
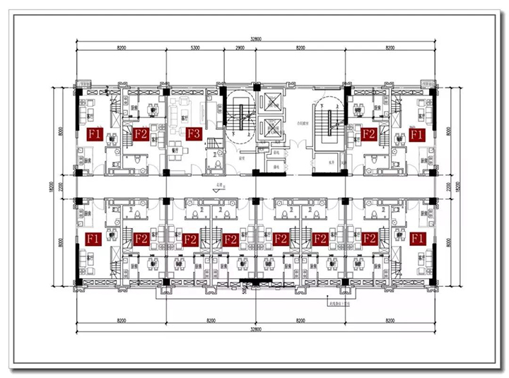
一、3#樓LOFT、8+3(底商)層、2T13戶。
1、LOFT:
F1、建筑面積約44.1㎡,共32套。
F2、建筑面積約44.1㎡,共64套。
F3、建筑面積約57㎡,共8套。
2、總計:104套,整棟樓共約4650㎡。
F1每層面積約176㎡,共約1400㎡,占總面積得30%。
F2每層面積約350㎡,共約2800㎡,占總面積得60%。
F3每層面積約57㎡,共約450㎡,占總面積得10%。
3、交房日期2019年12月。
LOFT戶型分布圖
建筑面積44.1㎡ -2室2廳
建筑面積44.1㎡ -2室2廳
建筑面積53.09㎡ -3室2廳
樣板間欣賞
金谷廣場多功能loft買一層得兩層自住、辦公、投資均可,交房日期2019年12月,誠邀親鑒!
金谷廣場區位示意圖
咨詢電話:0813-7239999
項目地址:釜江大道與二環路交叉口








